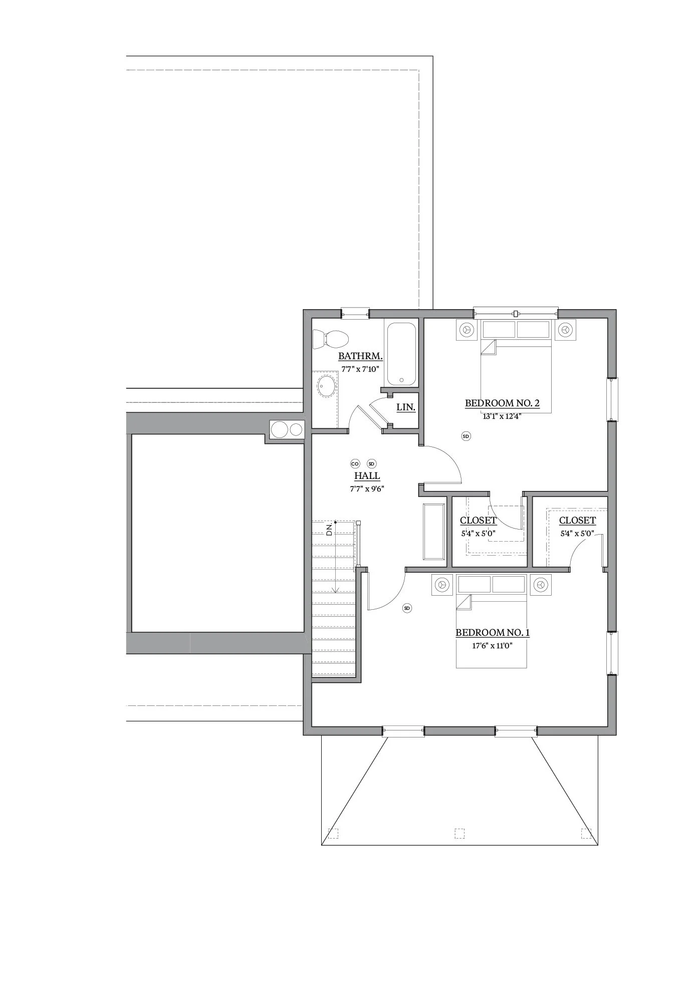
The Hilltop Floor Plans
HILLTOP WITH FIRST FLOOR PRIMARY SUITE
3 BD | 2.5 BA | 1,515 SQ FT
HILLTOP WITH FIRST FLOOR PRIMARY SUITE + OFFICE
3 BD | 2.5 BA | 1,765 SQ FT
HILLTOP WITH FIRST FLOOR PRIMARY SUITE + SUNROOM
3 BD | 2.5 BA | 1,765 SQ FT
HILLTOP WITH FIRST FLOOR PRIMARY SUITE
3 BD | 2.5 BA | 1,515 SQ FT
HILLTOP WITH FIRST FLOOR PRIMARY SUITE + OFFICE
3 BD | 2.5 BA | 1,765 SQ FT
HILLTOP WITH FIRST FLOOR PRIMARY SUITE + SUNROOM
3 BD | 2.5 BA | 1,765 SQ FT